반응형
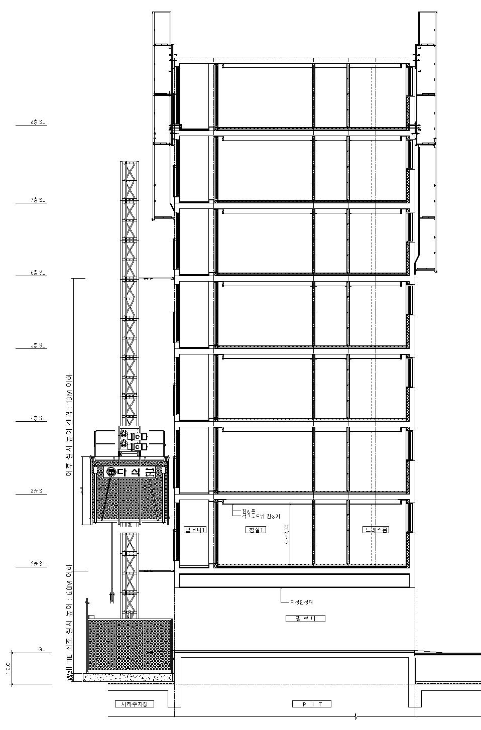
호이스트 설치가능 높이
갱폼 하부 케이지 1개층 절단시 6~7층(7층바닥~8층바닥) 타설 완료시
벽체 고정용 월타이 2개소 이상 설치 가능
1단 Wall Tie의 경우, 최초 설치 높이는 6.0M이하 (최초 고정 높이가 6M이상일 경우 별도 고정 방안 검토)
2단 이상의 Wall Tie의 경우 18M 이하 마다 설치

| [별표3] 리프트의 검사기준(제8조 관련) | ||
| 번호 | 구 분 | 내 용 |
| 1 | 승강로 등 | 가. 기초볼트는 부식, 변형이 없고 견고하게 고정될 것 나. 가이드 레일은 평행도가 유지되어야 하고 운반구와 균형이 맞아야하며, 콘크리트 운반용의 가이드레일에는 특수 커버가 부착되어있을 것 다. 승강로의 연결부분 및 볼트, 너트는 풀림이 없고 부식이 없을 것라. 바닥면에는 바닥면으로부터 높이 1.8미터 이상의 방호울이 설치되어 있고, 방호울에는 출입문 형태의 안전문이 설치되어 있어야 하며, 운반구가 상승해 있는 경우에는 외부에서 문이 열리지 않아야 하고, 문이 열린 경우에는 리프트의 운반구 작동이 정지될 것마. 방호울 및 화물반입구 안전문 연동장치의 성능은 문이 완전히 닫히지 않으면 운반구가 승강이 되지 않을 것 바. 랙 및 피니언 치면은 과도한 변형 및 마모가 없고, 랙 및 피니언의물림상태 및 윤활상태가 양호할 것 사. 승강로 수평지지대는 수평방향으로 정확히 고정되어 있을 것아. 고정용의 연결위치는 설계상에 명시된 위치에 고정되어 있을 것자. 랙 및 피니언식 리프트의 안전고리는 4개 이상 붙어 있어야 하고볼트, 너트 등은 풀림이 없을 것 차. 랙 및 피니언식 건설용 리프트의 기계식 스토퍼 등은 변형 등이없을 것 |
| 2 | 승강로 탑 | 가. 승강로 탑의 상부는 흔들림이나 틀어짐이 없이 견고히 지지되어 있을 것 나. 승강로 탑은 최하부의 첫 지지점은 기초면에서 부터 6미터 이내에 1개소 이상, 그리고 중간지점 들은 매 18미터 이내마다 1개소이상 건설물에 견고히 고정되어 있거나 지지물에 의하여 고정되어 있고, 최상부 지점에는 1개 이상이 고정되어있을 것 다. 승강로 탑의 최하단부의 배수구멍은 배수가 잘될 것 |
| 3 | 가이드레일 | 가. 가이드 레일은 평행도가 정확할 것 나. 가이드레일의 설치상의 지지물은 설계상의 간격 이내마다 건설물과 고정 또는 지지물에 의하여 견고히 고정될 것 |
| 4 | 운반구 | 가. 운반구는 규정된 볼트, 너트에 의하여 견고하게 고정되어 있어야 하고, 손상, 균열 등이 없을 것 나. 운반구 출입문의 인터록(interlock)장치는 이상이 없이 작동될 것다. 하물 낙하 방지울은 해당 운반 하물이 빠지거나 새어나오지 않 는 견고한 구조로서 변형 손상이 없을 것 라. 운반구 출입문과 방호울 및 화물반입구의 안전문 등을 동력으로 작동하도록 설치한 경우에는 운반구의 출입문이 2개 이상 동시에 개방되지 않을 것 마. 운반구 또는 운반구 화물반입문의 바닥전단면과 하역 또는 적재할 건물의 바닥전단면과의 간격은 60밀리미터 이하 일 것( 운반구 또는 화물반입문 바닥 끝단과 하역 또는 적재할 건물의 바닥에 200밀리미터 이상이 겹칠 수 있는 구조의 경우는 제외한다) 바. 운반구에는 적재하중, 형식번호, 제작연월 및 제작사 등이 포함된 이름판과 비상시 응급조치 요령 등의 안전수칙은 훼손되지 않을 것 사. 운반구에는 이름판, 적재하중, 응급조치 요령 등이 표시되어 있을 것 |
| 5 | 비상정지장치 | 비상정지장치는 누름버튼이 적색으로 머리부분이 돌출되고 수동 복귀되는 구조로서 작동상태가 양호하게 관리될 것 |
| 6 | 권과방지장치 | 권과방지장치는 설계상의 규정된 거리에서 작동될 것 |
| 7 | 경보장치 | 경보장치는 정상으로 작동될 것 |
| 8 | 과부하 방지장치 |
과부하방지장치는 규정치 이내에서 경보와 함께 승강이 정지될 것 |
| 9 | 리미트 스위치 |
리미트스위치는 정상적으로 작동하여야 하며, 볼트, 너트의 헐거움이없고 이물질의 부착이 없을 것 |
| 10 | 낙하 방지장치 등 |
낙하방지장치는 작동상태 및 조정이 양호하며 이물질의 부착이 없을 것 |
| 11 | 3상전원 차단장치 |
3상전원차단장치가 작동한 경우에는 주전원을 확실하게 차단하여 리프트의 작동을 정지시킬 것 |
| 12 | 기계장치 | 가. 고정볼트 등은 확실히 고정되고 풀림, 변형이 없을 것 나. 브레이크 및 클러치는 다음과 같을 것 1) 작동상태가 정상 상태를 유지할 것 2) 라이닝은 편마모가 없고 마모량은 원치수의 50퍼센트 이내이며, 로드ㆍ핀 등은 휨ㆍ손상이 없을 것 3) 디스크의 마모량은 원치수의 10퍼센트 이내일 것 4) 래칫, 휠 및 폴의 상태는 양호할 것 5) 드럼은 변형, 마모가 없을 것 다. 윈치는 고정 및 급유상태가 양호할 것 라. 기어, 축, 베어링 및 로프 등의 회전 또는 운동부분 등으로써 근로자와의 접촉으로 인하여 재해를 입을 우려가 있는 곳에는 접촉을 방지하기 위한 울 또는 덮개가 설치될 것 마. 승강로의 바닥 등에 설치되어 있는 완충장치는 변형 등이 없을 것바. 랙 연결부의 어긋남 한도는 1.5밀리미터 이내일 것 |
| 13 | 도르래 | 도르래 등은 다음 각 목과 같을 것 가. 도르래는 회전상태가 원활할 것 나. 도르래 본체는 균열, 변형, 파손 등이 없을 것 다. 도르래 홈은 이상마모가 없어야 하고, 마모한도는 와이어로프 직경의 20퍼센트 이하일 것 라. 고정 및 급유상태는 양호할 것 |
| 14 | 와이어로프 등 | 가. 와이어로프는 다음과 같을 것 1) 권상용 와이어로프는 운반구의 위치가 최저가 되었을 때 드럼에2바퀴 이상 감겨져 있을 것 2)「산업안전보건기준에 관한 규칙」의 제166조 “이음매 있는 와이어로프 등의 사용금지”에 관한 규정에 적합할 것 3) 단말고정은 손상, 풀림, 탈락 등이 없고, 도르래에서 벗겨지지 않도록 조치되어 있을 것 4) 급유가 적정할 것 5) 소선 및 스트랜드가 돌출되지 않을 것 6) 국부적인 지름의 증가 및 감소가 없을 것 7) 부풀거나 바구니 모양의 변형이 없을 것 8) 꺾임 등에 의한 영구변형이 없을 것 9) 와이어로프의 교체 시는 리프트 제작당시의 규격과 동일한 것 또는 동등급 이상으로 할 것 나. 체인은 다음과 같을 것 1) 체인은 사양과 동일할 것 2) 연결된 5개의 링크를 측정하여 연신율이 제조당시 길이의 5퍼센트 이하일 것(습동면의 마모량을 포함한다) 3) 링크 단면의 지름 감소가 해당 체인의 제조시보다 10퍼센트 이하일 것 4) 균열이 없을 것 5) 심한 부식이 없을 것 6) 깨지거나 홈 모양의 결함이 없을 것 7) 심한 변형 등이 없을 것 |
| 15 | 전기장치 | 가. 스위치는 정격용량에 적합할 것 나. 배선의 피복에서 손상, 파손, 탄화 등 이상이 없을 것 다. 버튼의 운전스위치는 권상, 권하의 표시와 운반구의 상하작동이일치할 것 라. 모터, 전기부품, 배선 등은 절연저항이 양호할 것 마. 전기기기의 외함은 접지가 되고 접지저항이 양호할 것 바. 신호용의 부저램프, 인터폰의 작동상태가 양호할 것 사. 전동기는 이상음 및 누전이 없고 접지가 양호하며, 접속단자의 풀림이 없을 것 아. 제어반에는 작업방향의 표시가 분명하여야 하고 케이스는 변형이없이 방수, 방진이 되어야하며 마그네트스위치의 접점은 마모, 손상이 없고 터미널의 고정상태가 양호하여야 하며, 과전류 보호용차단기 또는 퓨즈의 차단용량은 해당 전동기 등의 정격전류 대비차단기는 250퍼센트, 퓨즈는 300퍼센트 이하일 것 자. 접지는 완전하여야 하며 접지저항은 전압 400볼트 미만인 경우 100옴 이하, 전압 400볼트 이상인 경우 10옴 이하 일 것(방폭지역의 전기기계, 기구의 외함 및 피뢰접지는 전압에 관계없이 10옴 이하) 차. 방폭전기기계기구는 해당지역 방폭등급에 적합할 것 카. 자동운행장치가 설치된 리프트의 비상정지용 누름버튼은 반드시 유선으로 배선되어야 하고, 운반구 내의 비상정지스위치 외에 운반구의 각 출입문 및 건물 각층에 있는 호출용 송신기 설치장소 등에 1개 이상 설치되어 있어야 하고 정상 작동되어야 하며, 출입문의 연동장치는 이중으로 설치되어 운반구가 정지해 있지 않은 층의 건물 화물반입구 안전문은 외부에서 열리지 않을 것 타. 자동운행장치는 호출기를 이용하여 호출되지 않는 한 임의로 최저층 또는 지정한 층으로 이동하지 않아야 하며, 운반구가 지정된 정지장소에 정지하여 있지 않거나 이동 시에는 경보설비가 작동할 것 파. 자동운행장치가 설치된 인화공용 리프트는 운반구의 승하강시 승강로에 진입한 사람, 돌출물 또는 장애물에 운반구의 상부 또는 하부가 충돌할 우려가 있는 경우 주전원을 자동적으로 차단하고 충돌을 감지하는 즉시 운반구가 정지할 것 하. 무선 자동운행장치는 인접장소에 설치된 리프트 다른 기계류 조작용 자동운행장치 및 그 밖에 무선기기 등에 의한 오작동 또는 불의의 작동이 되지 않아야 하며, 두 개의 채널에서 두 개의신호에 의하여 운반구가 작동될 것 거. 자동운행장치의 운전상태 표시램프 또는 표시기는 리프트의 운전, 조작상태와 일치하여야 하며 오작동하지 않을 것 너. 자동운행장치를 사용하는 리프트 운반구에는 자동운행장치의 조작에 관한 안전수칙 및 주의사항을 부착할 것 |
| 16 | 작동시험 | 가. 상승, 하강의 동작은 원활할 것 나. 리미트스위치의 작동이 정확할 것 다. 브레이크, 클러치의 작동이 정확할 것 라. 안전장치 작동이 정확할 것 |
| 17 | 운전대, 운전 |
가. 운전자의 시야가 방해되지 않을 것 나. 운전자가 용이하게 조작할 수 있도록 유지될 것 다. 운전자의 상부에는 낙하물에 의한 위험이 없을 것 |
반응형
'거실_건축 이야기' 카테고리의 다른 글
| 경량 기포 콘크리트 (0) | 2022.05.08 |
|---|---|
| 레미탈/건조 시멘트 모르타르 (0) | 2022.03.27 |
| 건조 시멘트 모르타르 사용량 (0) | 2022.03.24 |
| 조적 쌓기 방법(영식, 불식, 화란식) (4) | 2022.03.20 |
| Flat Plate Slab vs. Flat Slab (0) | 2021.09.19 |
| 위험물 및 고압가스 안전관리 기준 (0) | 2021.07.25 |
| 메모도, 네모도, 매모도 ? (5) | 2021.06.27 |
| 접합유리(Laminated Glass)의 종류 및 부호 (0) | 2021.06.13 |
| 배강도 유리의 종류 및 부호 (0) | 2021.06.06 |
| 분리타설시 이어치기부 전단보강 (0) | 2021.04.21 |