이번엔, 아래의 물량 산출 중에서 이번에는 계단 물량 산출에 관해서 정리해 볼 생각이다.
계단은 단순하지 않고 복잡하지만, 원리는 역시나, 단순 하다.
| 물량산출- 각부재별 물량산출의 기본 물량산출- 기초 철근 물량 산출 #01 물량산출- 기초 철근 물량 산출 #02 물량산출- 슬라브 물량 산출 물량산출- 보 물량 산출 물량산출- 기둥 물량 산출 물량산출- 벽체 물량 산출 물량산출- 계단 물량 산출 |
건축적산실무라는 책에는 단순히 적혀 있었다.
계단은 내가 생각하기에 적산에서 가장 어려운 부분이다.
적산이라면, 대부분 가로 x 세로 = 면적 구하기 (초등 수학)
콘크리트와 같은 부피 구가하기, 가로 x 세로 x 높이. (초등 수학)
철근과 같이 길이 구하기.....
단순히 말하자면, 사칙연산 + - x / 이 네가지로 다 끝나는게 보통인데,
계단은 중학 수학 수준인 "피타고라스의 정리"가 등장한다.
직각삼각형에서 2변을 알때 한변의 길이를 구하는 무려 중학생 수준이다.
책의 내용은
| [계단] |
| - 계단은 경사면적에 단의 평균 두께를 곱하여 체적 산출 - 계단 한단의 체적에 계단 단수를 곱하여 전체 체적을 구함. - 계단 참은 바닥판 산출 방법에 준한다. V = w x l x t0 V = V1 x 계단단수 |
라고 되어 있는데,
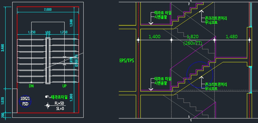
아래 그림 중 평면도에서 빨간색 선 내부를 구하는 거다. 외부는 당연히 벽체에서 구할 테니.

일단, [1], [2] 부분은 슬라브와 동일 하니, 평면도를 보고, 간단히 구할 수 있다.
여기서는 [1]구간은 1.3 x 2.6 이고,
[2]구간은 1.38 x 2.6 이다.
혹시, 단면을 보고 마감 두께를 고려해서 1.3이 아닌거 아닌지 의문을 가질지 모르겠는데, [1]구간이 커지면, [2]구간이 줄어 들기 때문에 마감을 고려하던, 안하던 동일 하니, 평면도만 가지고 산출 해도 된다.

이제 제일 어려운 부분인 경사면을 구해보려고 한다.
계단의 단너비가 260이고 단높이가 175이니, 여기서 피타고라스의 정리를 이용해서
제곱하고 제곱해서 더하고 루트 씌워서 계산 하면, 313이 나온다. 그러면 파란색 평행사변형의 밑변 길이가 나온다.

계단 한단의 길이야 313이지만, 여러단일경우는 달라지는 거 아닌가요?
물론 아니다. 위의 그림은 8단 이다.(평면에는 7단 아니가 하겠지만, 참 부분이 계단 1단이 됨으로 평면과 단면은 항상 1단이 차이가 난다.)
313 x 8 하면, 거의 2507과 같으니, 걱정 하지 않아도 된다.
산식을 한번 정리 해봤다.

철근을 포함한 산출서는,
| 부 재 | 항 목 | 단위 | 산 식 | 값 | 비 고 |
| SS1 | 콘크리트 | M3 | |||
| 거푸집(참부) | M2 | ||||
| 거푸집(경사면) | M2 | ||||
| 거푸집(챌판) | M2 | ||||
| 상부 주근(계단 참) | M | ||||
| 상부 부근(계단 참) | M | ||||
| 하부 주근(계단 참) | M | ||||
| 하부 부근(계단 참) | M | ||||
| 계단상부 주근 | M | ||||
| 계단하부 주근 | M | ||||
| 계단 상부 부근 | M | ||||
| 계단 하부 부근 | M |
이런식으로 될테고, 엑셀로 정리 해보면 첨부와 같다.
혹시, 예리한 눈과 머리를 가진 분은 계단 옆면 거푸집 물량을 뽑지 않은 걸 이상하게 생각 할 수 도 있다.
하지만, 계단실 벽체를 뽑을 때 공제를 하지 않기 때문에 측면거푸집은 뽑지 않아도 된다.
실제로는 계단 옆면의 거푸집 물량을 산출 하지 않는 것이 아니라, 벽체 거푸집 산출시 이미 산출 된거다.
이름정의를 통한 값을 넣는 함수가 들어 있어서, "EXCEL 매크로 사용 통합문서(*.xlsm)" 으로 저장 했고,
파일을 열면 아마, "보안경고 매크로를 사용할 수 없도록 설정했습니다." 라고 뜨겠지만, 산식을 값으로 변경 하는 함수 때문이니, "콘텐츠 사용" 걱정 말고, 버튼을 눌려야 한다. (바이러스 없어요.... ㅡ.ㅡㅋ)
<TIP. 계단실 공제>
계단실의 경우는 별도로 슬라브를 산출 하기 때문에, 위와 같이 같이 계산할 경우 슬라브가 2번 산출되게 된다.
그럼으로 슬라브 산출시 해당 평면 부위는 제외 해야 된다.
그래서, 계단 관련된 부분의 산출서에 계단실 공제라는 감하는 항목이 있게 된다.
'주방_물량산출' 카테고리의 다른 글
| 난간대 물량산출1 (0) | 2024.05.12 |
|---|---|
| 테라조 물량산출2 (2) | 2024.05.05 |
| 테라조 물량산출1 (0) | 2024.04.28 |
| 타설 부착 단열재 물량 산출 (0) | 2024.04.21 |
| 적산에 대한 오해 (1) | 2023.06.04 |
| 적산과 견적, 적산의 종류 (0) | 2020.06.18 |
| 물량산출- 벽체 물량 산출 (3) | 2020.06.16 |
| 물량산출- 기둥 물량 산출 (4) | 2020.06.10 |
| 물량산출- 보 물량 산출 (0) | 2020.06.09 |
| 물량산출- 슬라브 물량 산출 (0) | 2020.06.03 |